
课程设计
空间设计训练课程强调通过“图绘/制作(drawing/making)”来思考,包含三大板块:空间想象与体验、经典空间案例抄绘、空间设计与表达。
课程展示(节选)
PART.1 空间想象与体验
课程第一部分为空间想象与体验。本模块从柏拉图的寓言故事出发,同学们从文字阅读中提取空间要素并在符合情节与逻辑的前提下,发挥想象进行自由绘制。
故事简述:设想,在一个洞穴中有一批囚徒,他们自小被束缚在此,受铁链控制不能转头,只能面向洞壁。在他们的后上方有一堆火,和一条横贯洞穴的小道,沿小道筑有一堵矮墙。有一些人会扛着各种器具走过墙后的小道,而火光则把各种器具投影到囚徒面前的洞壁上,囚徒便自然地认为影子是惟一真实的事物。如果他们中的一个囚徒被释放,转过头来看到了火光与物体,他最初会感到眩晕,但是会慢慢适应,当他看到有走,便会逐渐走出洞穴,看到阳光下的真实世界,此时,他会意识到以前所生活的世界只不过是一个洞穴,而以前所认为的真实事物也只不过是影像而已。这个时候,他有两种选择,返回洞穴或继续留在真实世界。他选择了返回洞穴,并试图劝说他的同伴走出洞穴,但他们却认为他在胡言乱语,根本不会相信,并且会绑架他,甚至在可能的情况下杀死他。整个洞穴之喻到此结束。
#1 李欣

#2 刘殷

#3 王子轩

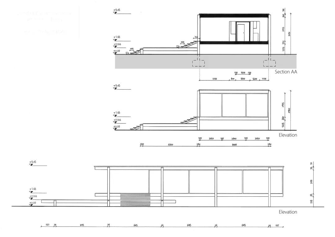
课程第二部分为经典空间案例抄绘。本模块选取了五个经典建筑作为案例,同学们在对每个建筑进行分析后,了解了建筑的基本空间构成、功能排布与表达手法。在此基础上对空间进行抄绘练习,在熟悉建筑规范制图的基础上体会空间构成-场所功能与场所氛围在设计之中的交互。
建筑目录:
1.库内奥抵抗运动纪念碑——奥尔多·罗西
2.阿纳姆临时雕塑展厅——阿尔多·范·艾克
3.巴塞罗那德国馆——密斯·凡·德·罗
4.范斯沃斯住宅——密斯·凡·德·罗
5.玻璃房——菲利普·约翰逊
#1 王子轩




#2 鲁琦




#3 李谦谦




PART.3 空间设计与表达
课程第三部分为空间设计与表达。在进行上述两个模块的训练后,模块三将设计场地指定的为同学们日常生活中非常熟悉的文教楼的一间教室,并对其进行再设计。从而使大家能够了解切实的空间需求,把握实际的空间尺度。同学们按照功能-主题-概念-设计的基本流程加以自身空间的理解,建构出了各具特色的空间。
#1 王思奇
空间设计使我加强了对空间的认知,正如醉翁之意不在酒一样,筑建的是围合 ,设计的是空间。也使我了解了不同空间的相互关系与处理,空间的正负运用,和重要的尺度关系,并通过地点联系和思考人与空间的更多可能性。
我们把城市的密度和功能放到70m的空间里,依据产品设计的工序优化空间布局,把城市功能区划分融入空间布局之中,强化动线,解决噪声问题。利用空间密度的变化,营造出每个人每个程序所需要的空间。


#2 管知文
在我看来,空间设计是“有”与 “无”的关系,关键在于有特定用途的“无”。
本方案位于文教,基于繁忙的校园生活,旨在为员工、教师提供一个类似于“家”的温馨场所,来放松身心。空间设置了“客厅”、观影区、讨论区、午休区、综合区来满足不同人对空间的不同需求。在功能具备的基础上,整个空间想要呈现一种舒适、温暖、安静的氛围。首先,在空间分隔与交错中,通过设置不同方向、位置的隔断来引导人流动线和视线;其次,空间兼备开放性和私密性,“客厅”所处开放区域,希望促使人们有较丰富的活动并且在此交集;午休区具备私密性,空间围合性强,并设置在人流最少的地方,提供有安全感的午休环境。除此之外,空间用玻璃和墙体进行分隔,体现不同的虚实感;以米色为主基调,营造简洁、温柔的治愈感。希望通过对空间的设计来沟通人们与场所的关系。




#3 王祉涵
我认为的空间设计是“实”与“虚”的配合,通过形体间的搭建、咬合、穿插、分离来实现实体与虚体的转换,从而进行一个空间的最终呈现。
本次方案设计以人的需求为出发点,考虑到教学楼中没有可以休息或者简单用餐的空间,针对这一现象,结合休闲娱乐的功能,进行了一个集休息、用餐、自习于一体的空间设计。首先,根据功能的不同,在空间中分别设置了茶水间(可用餐)过渡区(可简单休息或者工作)、休息区(可午休或工作)、阅读区(安静阅读)。其次,根据私密程度,将私密区和公共区分设在空间的两面,并对私密区进行了一些视线的阻挡和地面的下沉,以此来保证良好的私密性。最后,根据需求的不同又设置了多人空间和单人空间,以此满足不同人群的需求。整体空间呈现暖紫色调,给人一种安静舒适的氛围感。


#4 曹昕怡
空间应该根据需求来确定,在空间设计时也应该注意到正负空间的分隔,同时从视线、动线、材质等多方面同时考虑。
我们组选取的功能是工作室。考虑到本专业缺少一个较为专业的工作室,因此我设计了环艺工作室。在此工作室,环艺同学可以绘制专业图纸,制作简易模型,疲惫时可简单休息并就餐。整体选取了白色和原木色营造了舒适干净的氛围便于环艺同学长时间的绘图和工作。通过家具的不同高度丰富了视线,各个空间相互连通,同学们可随时交流。

#5 鲁琦
对一个空间进行重新规划并使它具有一定的功能性和趣味性,使人进入这个空间有某种独特的感受。
“任意门讨论空间”中设置了三个不同大小的柱体空间,将整体分割成外部讨论区、内部讨论区和休闲区。设计目的是通过可旋转的柱体使门的位置任意化,从而增加人在空间内的趣味体验,同时通过设置半封闭的柱体空间来增加部分讨论区的私密性。空间内材质多样,玻璃增加通透感,磨砂玻璃增强隐私性,轻质竹编圆筒使转动更具安全性,反光的大理石地面更具质感。整体给人以趣味性的空间感受。


#6 李谦谦
空间设计就是处理“有”和“无”之间的关系,良好空间环境的营造不仅是创造物质实体形态,还应该控制好"无",即空间与空间之间的内在组织关系。同时还应充分考虑到我们所创造的空间给使用者带来的生理、心理上的感受等问题。
在课程中,我们被要求对文教的303教室进行改造, 同时每个小组需要选择一个功能主题。我们小组首先确定的是无声室,我想到可以做一个空间展现声音的对比——于是我确定了我的主题显与隐。在空间设计时,我将一个大圆弧放入教室正中间,于是教室被分割为四个区域,分别为入口区,一个过渡区,弧线分割出的主要讨论区即有声区,和被墙隔开的两角的无声区。两个无声区分别按照光照的强弱被设置为靠窗的阳光房和无光的音影室。人的流线也因此形成一个环形流线。最后通过对两个无声室的再思考,发现我的主题声音的显与隐可以进一步深化:阳光房的光线在一天之中不断变化,到了夜晚阳光不再,却可以透过玻璃看到对面教学楼的灯光。在阳光房内一天的光线不断发生显与隐的变化。

课程信息
授课时间:2021.11.29-2021.12.15
课程名称:空间设计训练
授课教师:孙子文、韩冰
参与教师:韩默
课程员工:2020级环境设计专业